Residential
109b Marcella St, Charlottesville VA 22911
- $714,900
- MLS #:670772
- 4beds
- 2baths
- 1half-baths
- 2,758sq ft
- 0.13acres
Neighborhood: The Grove At Brookhill
Square Ft Finished: 2,758
Square Ft Unfinished: 0
Elementary School: Hollymead
Middle School: Lakeside
High School: Albemarle
Property Type: residential
Subcategory: Detached
HOA: Yes
Area: Albemarle
Year Built: 2026
Price per Sq. Ft: $259.21
1st Floor Master Bedroom: DoubleVanity, WalkInClosets, BreakfastArea, EntranceFoyer, EatInKitchen, KitchenIsland, Loft, MudRoom, RecessedLighting,
HOA fee: $238
View: Mountains, Residential, Valley
Security: SmokeDetectors, CarbonMonoxideDetectors
Design: Craftsman, Farmhouse
Roof: Architectural,Composition,Shingle
Driveway: FrontPorch, Porch
Windows/Ceiling: InsulatedWindows, LowEmissivityWindows, Screens, TiltInWindows, Vinyl, EnergyStarQualifiedWindows
Garage Num Cars: 2.0
Cooling: CentralAir
Air Conditioning: CentralAir
Heating: Central, ForcedAir, HeatPump, Propane
Water: Public
Sewer: PublicSewer
Features: Carpet, CeramicTile, Hardwood, LuxuryVinylPlank
Fireplace Type: One, Gas, GlassDoors, GasLog
Appliances: ConvectionOven, Dishwasher, EnergyStarQualifiedDishwasher, Disposal, GasRange, Microwave, Refrigerator
Amenities: AssociationManagement, CommonAreaMaintenance, Playground, ReserveFund, RoadMaintenance, SnowRemoval, Trash
Laundry: WasherHookup, DryerHookup
Amenities: Playground
Kickout: No
Annual Taxes: $6,391
Tax Year: 2026
Legal: The Grove at Brookhill lot 109 or choose your own life
Directions: Route 29 N to Right turn on Polo Grounds Rd. Turn Left on Halsey Ave. Follow Halsey Ave to top of hill, Left on Sablewood Dr. Model home of same floor plan at 1115 Sablewood. Take right on Laconia Lane. Take a left on Marcella St and it is on the left
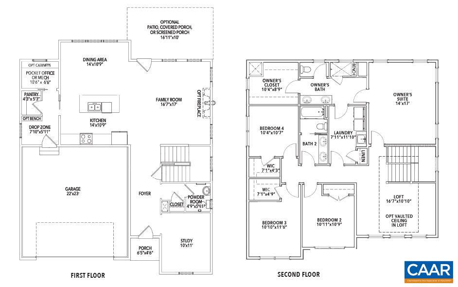
Welcome to the Grove at Brookhill, a quiet NEW neighborhood nestled in the woods with all the conveniences of Route 29 North in Charlottesville. Build the Aspen floorplan from the ground up in ~8 months time. Must haves like a private study, walk-in pantry, and drop zone complete the main level in addition to a large kitchen that flows conveniently into the family room and dining area. The upstairs showcases an airy loft perfect for a play room, second family room, or work from home space, 4 bedrooms, spa-like baths, a luxurious owner's suite + the added convenience of a connected laundry room. Numerous options are available to custom tailor this home to meet the way you want to live. Quality features throughout including 2x6 exterior walls, R-21 insulation, energy efficient windows, stunning elevations, wood shelving, tankless water heater and energy efficient HVAC and so much more. Reserve your lot today! Photos are of a previously built home of the same floor plan and may show optional or upgraded features.
Builder: Greenwood Homes
Days on Market: 148
Updated: 4/02/26
Courtesy of: Nest Realty Group
Want more details?
Directions:
Route 29 N to Right turn on Polo Grounds Rd. Turn Left on Halsey Ave. Follow Halsey Ave to top of hill, Left on Sablewood Dr. Model home of same floor plan at 1115 Sablewood. Take right on Laconia Lane. Take a left on Marcella St and it is on the left
View Map
View Map
Listing Office: Nest Realty Group