Residential
258 Palmer Pl, Ruckersville VA 22968
- $675,000
- MLS #:667494
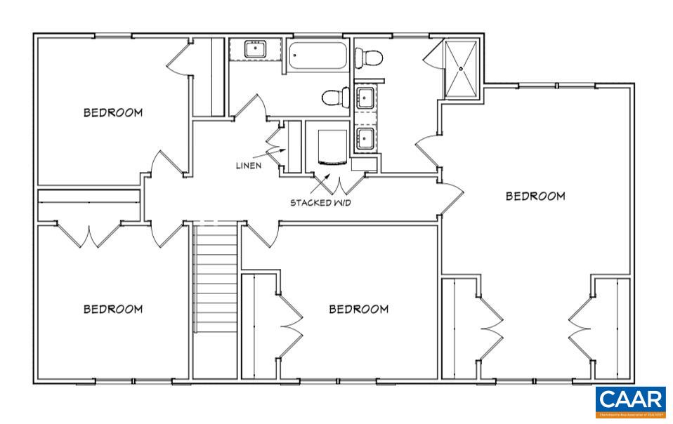
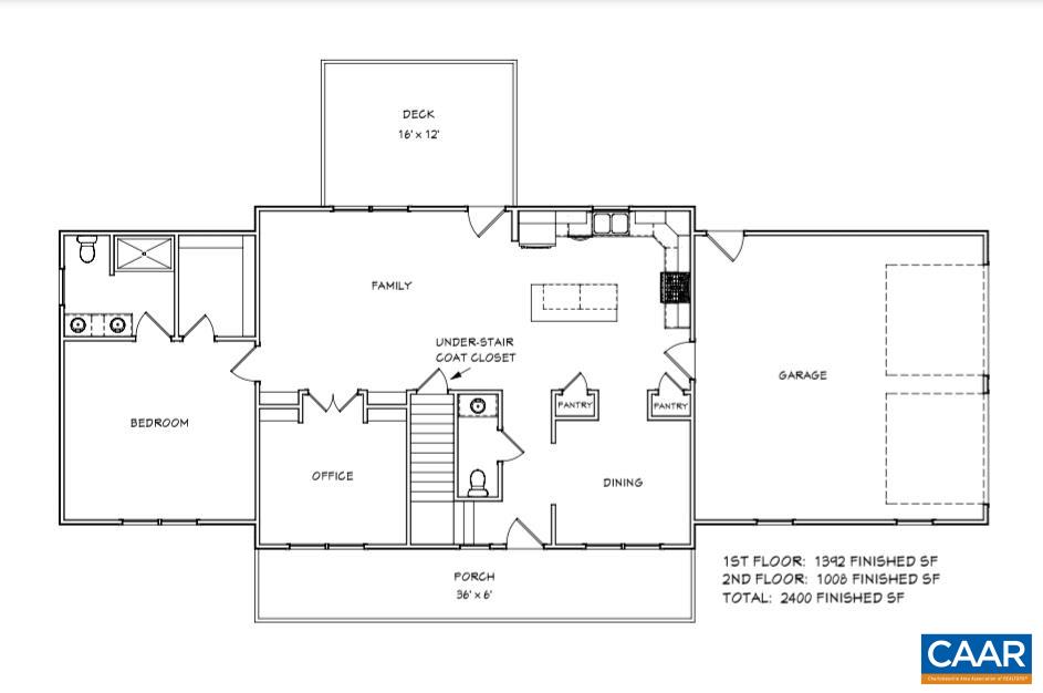
- 4beds
- 3baths
- 0half-baths
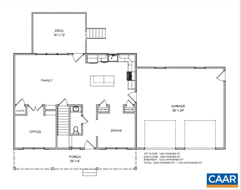
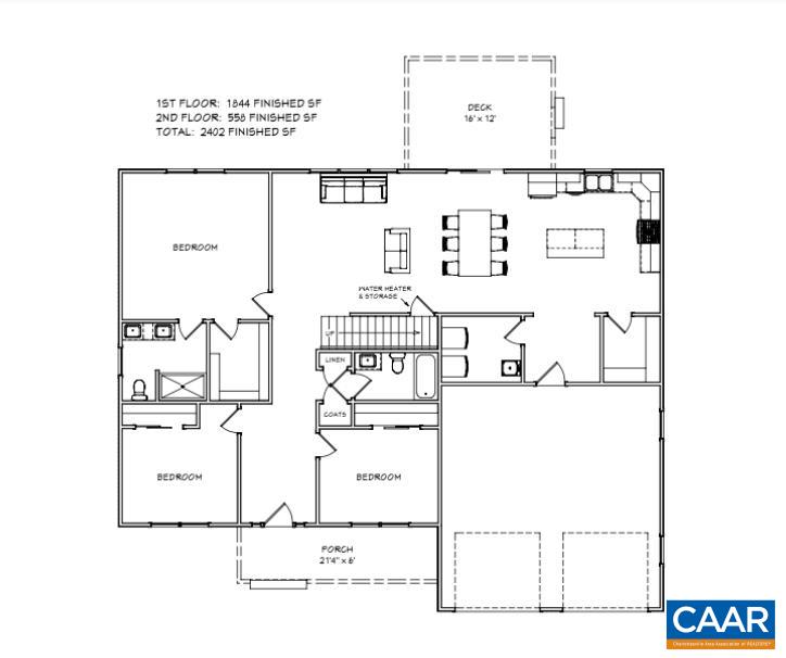
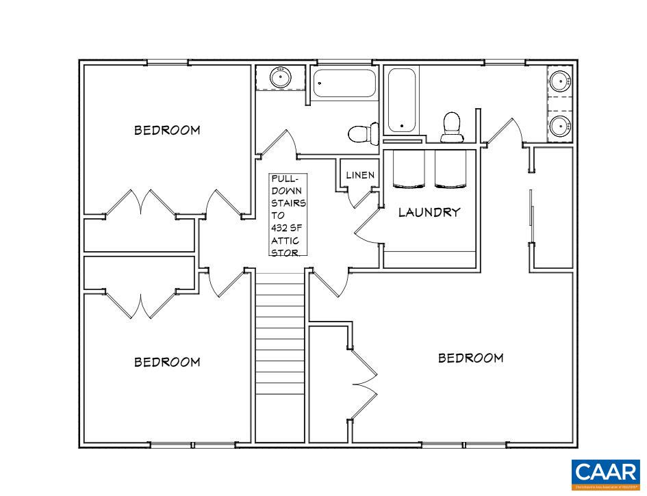
- 2,396sq ft
- 2.44acres
Neighborhood: Hancock Farms
Square Ft Finished: 2,396
Square Ft Unfinished: 0
Elementary School: Ruckersville
Middle School: William Monroe
High School: William Monroe
Property Type: residential
Subcategory: Detached
HOA: Yes
Area: Greene
Year Built: 2025
Price per Sq. Ft: $281.72
1st Floor Master Bedroom: PrimaryDownstairs, WalkInClosets, EntranceFoyer, HomeOffice, KitchenIsland, MudRoom
HOA fee: $250
View: Residential
Security: SmokeDetectors
Roof: Architectural
Driveway: Deck, FrontPorch, Porch, Wood
Windows/Ceiling: InsulatedWindows, Screens, TiltInWindows, Vinyl
Garage Num Cars: 2.0
Cooling: HeatPump
Air Conditioning: HeatPump
Heating: HeatPump
Water: Private, Well
Sewer: SepticTank
Features: Carpet, LuxuryVinylPlank
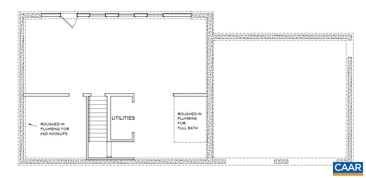
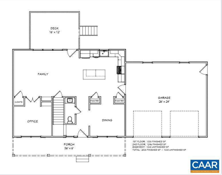
Basement: CrawlSpace
Appliances: Dishwasher, ElectricRange, Disposal, Microwave, Refrigerator
Amenities: RoadMaintenance
Amenities: None
Kickout: No
Annual Taxes: $4,658
Tax Year: 2025
Legal: MAP ID: 61C A 68, HANCOCK FARMS PH4 LOT 68 2.44 AC
Directions: From Charlottesville take 29N to Ruckersville. Make RIGHT on RT 33 East, LEFT on Hancock Dr, LEFT on Kenwood Ln, LEFT on Logan Dr, RIGHT on Palmer Pl. Property is on RIGHT in the cul-de-sac.
Fabulous location nestled in a peaceful cul-de-sac surrounded by 2.44 acres of mature hardwoods in the prestigious Hancock Farms subdivision. SPECTACULAR floor plan boasts: 2,396 FINISHED SF, 4BRs plus HOME OFFICE, 3 BATHS, OPEN FLOOR PLAN, STAINLESS STEEL APPLIANCES, KITCHEN ISLAND, GRANITE COUNTERTOPS, LUXURY VINYL PLANK FLOORS, and more! The developer has a multitude of options for building a home that fits your lifestyle! Our SMART floor plans can accommodate 1 level or 2 level living w/ an attached garage on a basement or crawl space. Hancock Farms is known for its neighborly, park-like setting and well-maintained community. This level home site is conveniently located near all shopping, restaurants, schools, health facilities, and entertainment. Quick access to RT 29 will get you to Charlottesville in 20 minutes. Enjoy the Blue Ridge Mountains for hiking, camping, and outdoorsy fun activities. Click on our VIRTUAL TOUR! Review the PHOTOS section for 3 MORE DESIGNS priced at $675,000! Check out another TO BE BUILT listing priced: $675,000 at 242 Palmer Pl, Ruckersville, VA 22968 MLS# 670251.
Days on Market: 226
Updated: 3/16/26
Courtesy of: Target The Market Real Estate
Want more details?
Directions:
From Charlottesville take 29N to Ruckersville. Make RIGHT on RT 33 East, LEFT on Hancock Dr, LEFT on Kenwood Ln, LEFT on Logan Dr, RIGHT on Palmer Pl. Property is on RIGHT in the cul-de-sac.
View Map
View Map
Listing Office: Target The Market Real Estate